YER: MALTEPE
YAPIM YILI: 2026
TAHMİNİ TAMAMLANMA YILI: 2026 EKİM
DAİRE SAYISI: 15
BRÜT DAİRE M2: 76
Kentsel dönüşüm kapsamında projelendirilen Varol Apartmanı'nın 2025 yılı Aralık ayında imar ruhsatı alınmıştır.
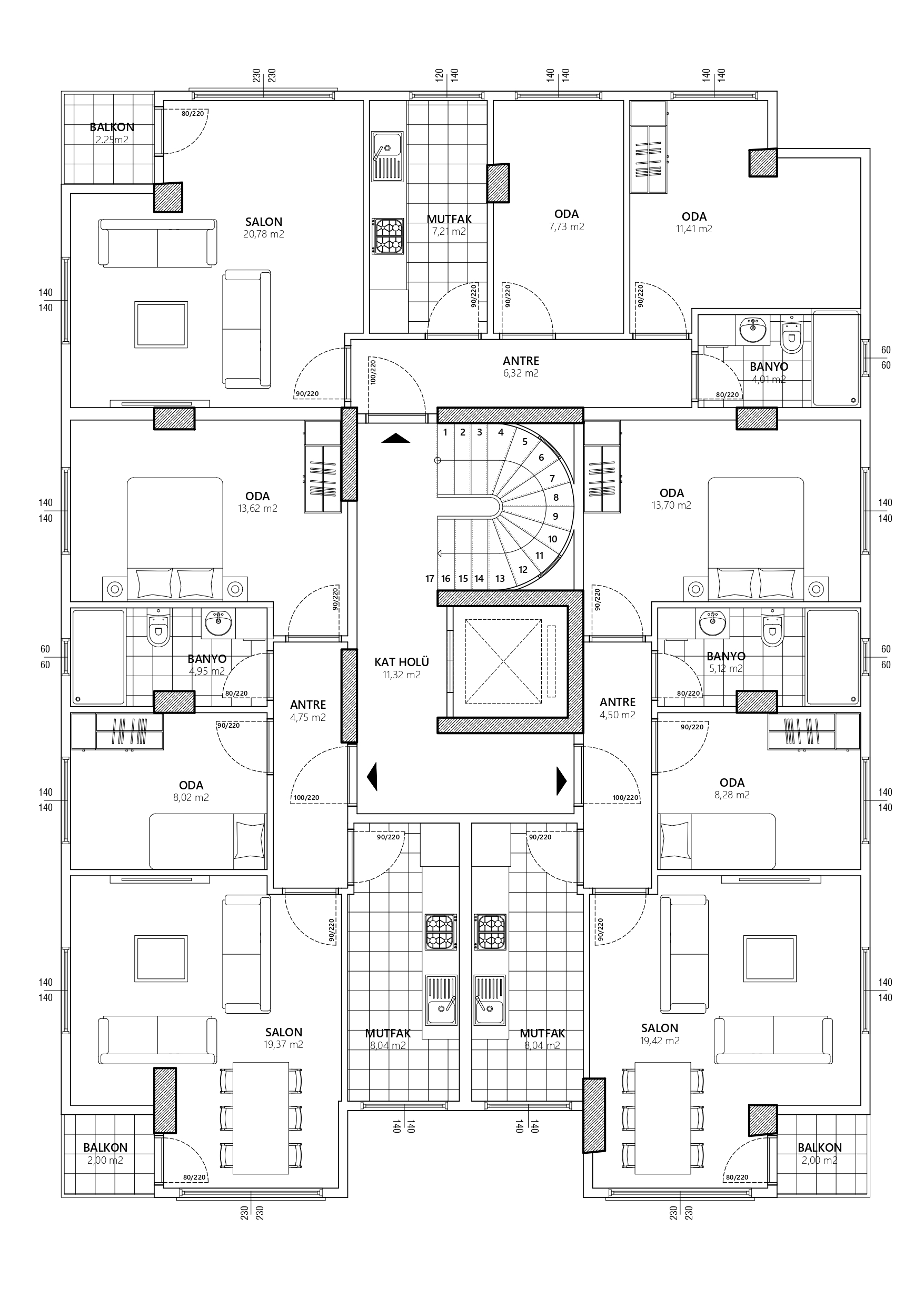
475 metrekare arsa içerisinde bulunan, toprak üstü 1080 metrekare inşaat alanına sahip apartmanımız zemin + 4 kattan oluşmaktadır.
15 dairenin bulunduğu binamızın 2026 ekim ayında kat maliklerine teslim edilmesi hedeflenmektedir.
Daireler 76 metrekare brüt, 2+1 olarak tasarlanmıştır.



Tamamlanan projelerimiz hakkında bilgi için Tamamlanan Projeler sayfamıza bakabilirsiniz.
